-
Koszyk jest pusty
-
x
-
Koszyk jest pusty
-
x
-
Atmos DC 15 GS Kocioł zgazujący drewno Generator 15 kW z wentylatorem wyciągowym
| Cena przesyłki | 219 |
| Dostępność |
do tygodnia
|
| Kod kreskowy | |
| EAN | 5905274150169 |
Zamówienie telefoniczne: 783433733
| Zostaw telefon |
ATMOS GENERATOR z wentylatorem wyciągowym - 15 kW
Kotły serii Generátor charakteryzują się specjalnym paleniskiem, wyłożonym z obu stron armaturą ceramiczną, z otworami w dolnej części do doprowadzania podgrzanego powietrza pierwotnego. Przeznaczone są do spalania drewna, na zasadzie zgazowania generatorowego za pomocą wentylatora wyciągowego (S), który odsysa spaliny z kotła i wtłacza do kotła powietrze do spalania. Korpus kotła wykonany jest jako spawany z wysokogatunkowych blach stalowych o grubości od 3 do 8 mm. Składa się z zasobnika paliwa (6 mm), który w dolnej części wyposażony jest w dyszę zgazowującą z podłużnym otworem do przepuszczania spalin i gazów. Przestrzeń spalania znajdująca się pod nim wyposażona jest w kształtki ceramiczne zapewniające idealne spalanie wszystkich substancji palnych z wysoką wydajnością w spalaniu przyjaznym dla środowiska. W tylnej części korpusu kotła znajduje się pionowy kanał spalinowy, w górnej części wyposażony w zawór do rozpalania. Górna część komina wyposażona jest w króciec wyciągowy do podłączenia do komina.
- Sprawność kotła według typu 88,8 - 91,2 %
Zalety kotłów gazujących na drewno ATMOS
- Możliwość spalania dużych kawałków drewna
- Duży zasobnik na opał – długi czas spalania
- Wysoka wydajność od 81 do 92 % w zależności od typu – powietrze pierwotne i wtórne jest wstępnie ogrzewane do wysokiej temperatury
- Ekologiczne spalanie – kocioł według ČSN EN 303-5 klasy 3, 4, 5, EKODESIGN 2015/1189
- Wentylator wyciągowy – bezpyłowe usuwanie popiołu, kotłownia bez dymu
- Pętla chłodząca przed przegrzaniem – bez ryzyka uszkodzenia kotła
- Automatyczne wyłączenie kotła po spaleniu opału – termostat spalinowy
- Wygodne usuwanie popiołu – duża ceramiczna komora spalania na popiół (w przypadku drewna usuwa się raz w tygodniu)
- Kocioł bez wymiennika rurowego – łatwiejsze czyszczenie
- Małe wymiary i niska masa
- Wybór drzwi lewych / prawych
- Wysoka jakość




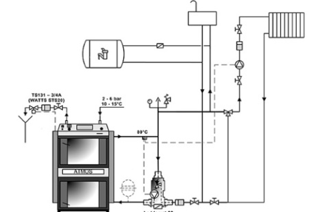
Instalacja
Kotły zgazowujące drewno ATMOS muszą być połączone z LADDOMAT 22 lub zaworem termoregulacyjnym (zawór trójdrożny sterowany siłownikiem w przypadku stosowania sterowania elektronicznego ATMOS ACD 03/04) aby uzyskać minimalną temperaturę wody powrotnej do kotła 65 °C. Temperatura na wylocie kotła musi być stale utrzymywana w zakresie 80 – 90 °C. Wszystkie kotły dostarczane są w wersji podstawowej z pętlą schładzającą przed przegrzaniem. Polecamy montaż kotłów ze zbiornikami akumulacyjnymi, które zmniejszą nasze zużycie paliwa i podniosą komfort cieplny.


Regulacja kotłów
Elektromechaniczna – regulacja mocy odbywa się za pomocą przepustnicy sterującej powietrzem sterowanej miarkownikiem ciągu typu FR 124, która automatycznie otwiera lub zamyka przepustnicę powietrza w zależności od ustawionej temperatury wylotu wody (80 – 90 °C). Należy zwrócić większą uwagę na ustawienie regulatora mocy, gdyż regulator oprócz regulacji mocy spełnia jeszcze jedną ważną funkcję zabezpieczenia kotła przed przegrzaniem. Kocioł wyposażony jest również w termostat regulacyjny umieszczony na panelu kotła, który steruje wentylatorem wyciągowym według zadanej temperatury na wylocie (80 – 85 °C). Temperaturę na termostacie regulacyjnym należy ustawić o 5 °C niższą niż na regulatorze ciągu FR 124. Kotły wyposażone są również w termostat spalin, który służy do wyłączenia wentylatora wyciągowego po wypaleniu się paliwa.
Kotły pracują ze zmniejszoną mocą do 70 % mocy znamionowej nawet bez wentylatora.

Wyposażenie panelu: Wyłącznik główny, termostat zabezpieczający, termometr, termostat regulacyjny i termostat spalinowy
Regulacja elektromechaniczna jest optymalnym rozwiązaniem sterowania pracą kotła (wentylatora) w prosty sposób. Panel ze standardową regulacją jest podstawową wersją dla wszystkich produkowanych kotłów.
Regulacja ekwitermiczna ACD 03
Każdy kocioł można wyposażyć u klienta w regulację elektroniczną ATMOS ACD 03 do sterowania całym systemem grzewczym według temperatury na zewnątrz, temperatury pokojowej i czasu. Ta regulacja jest w stanie sterować też samym kotłem z wentylatorem z wieloma innymi funkcjami.

Regulacja ekwitermiczna ACD 04
Kotły DC25GS i DC32GS można zamówić fabrycznie ze sterowaniem ATMOS ACD 04 z panelem dotykowym. Kotły są fabrycznie wyposażone we wszystkie niezbędne czujniki. Zestaw czujników ACD 01 do sterowania systemem grzewczym oraz dodatkowo czujnik temperatury spalin do sterowania pracą kotła.

Dane techniczne

